Casa pequena isolada com loft SOLARI 5.09 × 8.59 m

Descrição do produto

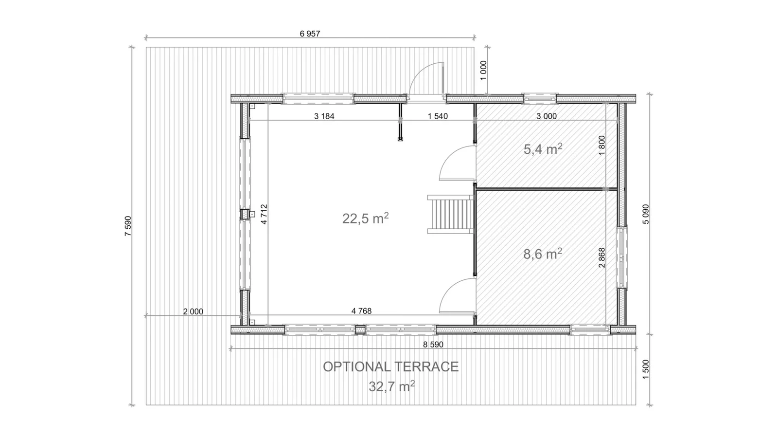
Casa Pequena Isolada SOLARI 5.09 × 8,59 m — Especificações Técnicas

Largura × comprimento do edifício 5,09 × 8,59 m
Área interna 50,6 m² (4 quartos)
Configuração dos quartos Sala de estar 22,5 m²; Quarto 8,6 m²; Quarto 5,4 m²; Sótão 13,3 m²
Terraço opcional 32,7 m²
Altura da parede lateral 2,70 m
Altura da cumeeira 4,05 m
Inclinação do telhado (por lado) 30°
Área do telhado 50,5 m²
Tábuas do telhado Encaixe de 19 mm com encaixe de madeira
Acúmulo de paredes (por dentro → por fora) 44 mm de tora sólida → camada de controle de vapor → lã mineral de ~100 mm → membrana à prova de vento → cavidade ventilada → revestimento de madeira de 18–20 mm
Construção de piso Tábuas T&G de 19 mm → vigas estruturais → isolamento de ~100 mm → barreira contra vapor/vento. No concreto: membrana plástica, suportes, lã de rocha ou EPS
Acúmulo de telhado Acabamento do telhado (por exemplo, telhas) → ripas e base → membrana respirável → lã mineral de ~100 mm → tábuas de telhado T&G de 19 mm
Valores U indicativos* Paredes ~0,30–0,35 W/m²K; Teto ~0,23–0,28 W/m²K; Piso: ~0,30–0,35 W/m²K
Portas 1 porta externa de vidro duplo ~160×200 cm; 3 portas internas ~80×200 cm
Janelas 5 unidades: 2 painéis envidraçados de altura total (~85×200 cm) + 3 janelas padrão (~80–120 × 100 cm)
Vidramento Janelas e portas premium com vidro duplo
Material Abeto nórdico certificado
Superfície externa da parede 57 m²
Número de quartos 4

Incluído no pacote padrão:

  • Suportes de piso, tábuas de piso e telhado, paredes e patilhas de telhado
  • Janelas e portas de vidro duplo Premium Plus
  • Kit de isolamento de telhado de 10 cm
  • Kit de isolamento de piso de 10 cm
  • Kit de isolamento de parede de 10 cm
  • Telhas de betume com camada inferior
  • Soleiras metálicas externas

22.330,00 €
Sem os custos de envio

Categorias