Casa Pequena Isolada NORDIC-L 5,74×11,94 m

Descrição do produto

  • Casa minúscula isolada em formato de L NORDIC-L 5.74 × 11,94 m – Especificações Técnicas

    Área de base 5,74 × 11,94 m
    Largura × comprimento do edifício 5,74 × 11,94 m
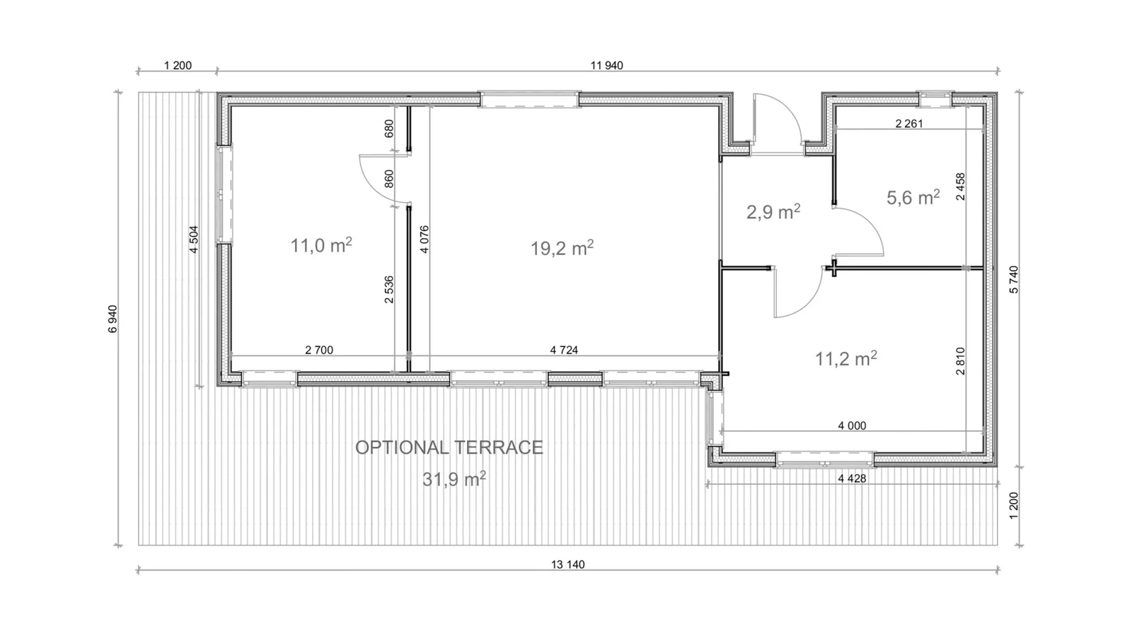
    Área interna 49,9 m² (2 quartos + sala + banheiro)
    Layout Sala de estar/cozinha em plano aberto; 2 quartos; 1 banheiro
    Altura da parede 2,6 m
    Altura da cumeeira 3,0 m
    Inclinação do telhado (graus) ~6,5°
    Área do telhado 59,3 m²
    Tábuas do telhado Tábuas de 19 mm com encaixe macho e ranhura
    Estrutura da parede (por dentro → por fora) Barreira de vapor → madeira maciça de 44 mm → isolamento de lã de rocha de ~100 mm → barreira contra o vento → cavidade ventilada → revestimento vertical de madeira de 19 mm
    Estrutura do piso Tábuas → vigas de piso de 19 mm de encaixe e encaixe → isolamento de lã de rocha de ~100 mm
    Estrutura do telhado Cobertura de telhado (EPDM) → ripas e sub-telhado → membrana aberta por difusão→ isolamento de lã de rocha de ~100 mm → tábuas de telhado de 19 mm de encaixe macho e ranhura
    Valores U indicativos Paredes ~0,30–0,35 W/m²K; Teto ~0,23–0,28 W/m²K; Piso: ~0,30–0,35 W/m²K
    Portas 1 porta externa de vidro (850 × 1980 mm); 3 portas internas de madeira (850 × 1980 mm)
    Janelas 4 grandes janelas (1700 × 1980 mm); 2 janelas de altura total (850 × 1980 mm); 1 janela de popa (1500 × 390 mm); 1 janela pequena (500 × 520 mm)
    Vidramento Vidro isolante duplo Premium Plus em janelas e portas
    Material Abeto ou pinho nórdico certificado
    Número de quartos 4

    Incluído no pacote padrão:

    • Vigas, tábuas de piso e telhado, paredes e vigas do telhado
    • Janelas e portas de vidro duplo Premium Plus
    • Pacote de isolamento de telhado de 10 cm
    • Pacote de isolamento de piso de 10 cm
    • Pacote de isolamento de parede de 10 cm
    • Cobertura de telhado em EPDM
    • Soleiras metálicas externas
26.502,00 €
Sem os custos de envio

Categorias